West Virginia University today (March 28) announced a public-private partnership to develop a $90 million multi-purpose development in the Evansdale area, the third and final phase of the current student housing master plan.

The development, to be called University Park, will include approximately 1,100 beds as well as WVU and other food services, along with retail development that will benefit both WVU students and the surrounding neighborhood, said Narvel Weese, WVU’s vice president for administration and finance.

“WVU must continue to upgrade its housing in order to appeal to the needs of our diverse student population, which includes traditional undergraduates, but more international and graduate students as well as families,” Weese said. “This final phase – which follows the University Place development in Sunnyside and the replacement of College Park apartments – helps us achieve those goals.”

The student housing master plan was adopted by the WVU Board of Governors last year to provide modern accommodations on the University’s Morgantown campus.

“If we are to meet our strategic plan goals, it is imperative that we provide the kind of accommodations sought by the best and brightest students in the 21st Century,” said Dean of Students Corey Farris.

“Today’s announcement, combined with the previously announced projects, provide WVU with a strong mix of housing accommodations that can appeal to undergraduate and graduate students from West Virginia and around the world,” he added.

Weese said the recent public-private projects do more than provide better housing for WVU students. They also expand the tax base for both the city and county by generating additional B&O taxes, he said, adding, “University Park alone should more than double the net tax revenue to the city from these properties.”

Additionally, he said, these mixed use developments provide an economic boost to the surrounding areas and will likely lead to private growth and other improvements nearby.”

University Park will replace current housing located nearby at Fieldcrest Hall and the Medical Center Apartments, both of which will be demolished, and Pierpont Apartments, where the lease will not be renewed.

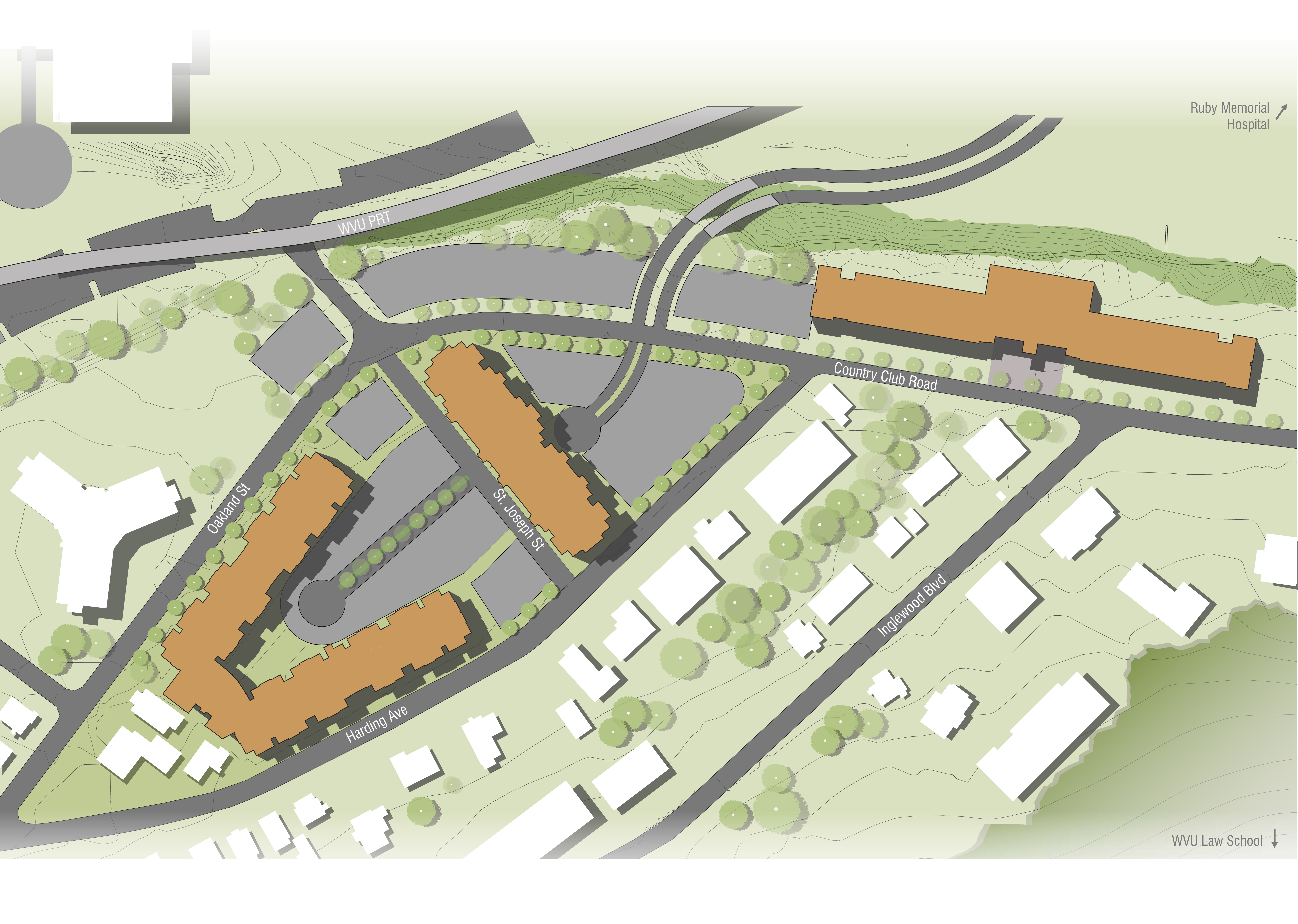
The development will be located on approximately 7 acres of land just north of University Avenue and located along Harding Avenue and Oakland Street, and stretching along Country Club Road behind the McDonald’s restaurant.

The site is centrally located between the University’s Evansdale and Health Sciences campuses, as well as near the College of Law, two PRT stations, the Student Recreation Center, sports recreation fields and Milan Puskar Stadium. With its proximity to existing WVU facilities, this location will facilitate pedestrian traffic and reduce vehicular traffic.

“Like University Place, this development in Evansdale will have a positive impact on the community by bringing retail services to the area in addition to modern student housing,” Morgantown Mayor Jim Manilla said. “The City and the entire community will benefit, both financially and aesthetically, and we are pleased to see the University working closely with the private sector on this mixed use development.”

Conceptual architectural plans for the development consist of three buildings with a combination of suite-style rooms and condominiums/apartments. The site will include sufficient parking and green space.

Auxiliary retail and office space will be included to create a campus village designed to improve student experience and campus life, as well as redevelop the area in between the campuses. In addition to providing convenient, quality housing options to undergraduate and graduate students, and faculty and staff, the project will ease connectivity and increase pedestrian activity between the Health Science and Evansdale campuses.

WVU is acquiring the property from MJR Evansdale Development LLC and various related entities, principals of which approached the University with this public-private project proposal during previous negotiations for a similar development in Sunnyside.

Developers began acquiring options in late 2010/early 2011 and over the course of the last two years, worked with 12 property owners to acquire 21 parcels totaling approximately 7 acres. The land has been acquired by WVU as part of the contractual public-private relationship between the parties. MJR Evansdale Development LLC, the private developer, consists of M&J Property Holdings LLC and RCL Evansdale Holdings LLC.

WVU acquired 5.7 acres Thursday for $12.2 million. A previous acquisition, plus some smaller additional anticipated acquisitions, will bring the total property acquisition cost to about $14.7 million. The WVU Board of Governors approved the purchase and financing in a special meeting Wednesday (March 27). The University’s property costs will be covered by proceeds from the development; the developers are responsible for privately financing the construction costs. The project will revert to the University in 40 years.

A motel currently located on the property will continue to operate until at least December. Other leases will continue to be honored, and site development will not begin until those leases expire.

While planning and design are still in the early stages, the development is expected to be ready in time for fall 2015 occupancy.

-WVU-

jb/03/28/13

CONTACT: University Relations/News
304.293.6997

Brian Helmick; MJR Evansdale Development LLC
304.340.3826; bhelmick@spilmanlaw.com

Follow @WVUToday on Twitter.